Bulgarische Immobilien vom Entwickler
Aufgrund des heutigen harten Wettbewerbs auf dem bulgarischen Immobilienmarkt zeigen Entwickler oder Bauherren, die die Urheber moderner Gewerbeimmobilien sind, ein extremes Interesse an der Qualität von Bauprojekten.
Aus diesem Grund zeichnen sich Häuser in Bulgarien in der Nähe des Meeres durch hohe Verbrauchereigenschaften aus, dank derer der Wohnungsanbieter die maximale Anzahl interessierter Käufer anziehen möchte.
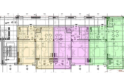
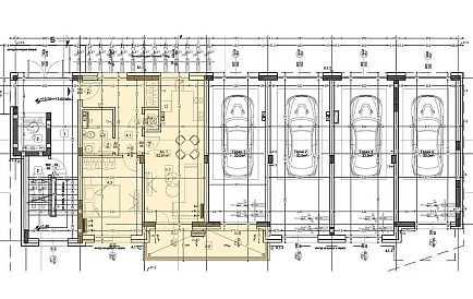
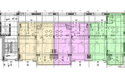
So sind moderne Gewerbeimmobilien eines Bauunternehmers in der Regel mit Klimatisierungssystemen ausgestattet, einem durchdachten Layout, das auf Wunsch des Käufers an seine persönlichen Bedürfnisse und Vorlieben, Parkplätze, das neueste Sicherheitssystem und andere Infrastrukturen angepasst werden kann.
... eine breite Palette von Wohnungen im primären und sekundären Immobilienmarkt
Darüber hinaus ist anzumerken, dass sich dank der Einführung neuer Technologien im modernen Bauwesen auch die Betriebseigenschaften von Gewerbeimmobilien erheblich verbessert haben. Auf dem Immobilienmarkt in Bulgarien bietet die Mehrheit der Entwickler moderne Wohngebäude aus monolithischen Ziegeln mit einem sorgfältig gestalteten Layout für einzelne Projekte an, die selbst den anspruchsvollsten Geschmack eines sachkundigen Käufers befriedigen können.
Das wichtigste Plus beim Kauf eines Eigenheims von einem Entwickler ist die Möglichkeit, die Kosten beim Kauf eines neuen Eigenheims zu senken. Mit anderen Worten, wenn Sie sich in einem frühen Stadium des Baus für den Kauf einer Wohnung in einem Haus entscheiden, können Sie bis zu 20% - 35% des Nennpreises für Wohnungen in Bulgarien in einem fertigen Wohnkomplex sparen.























































































































